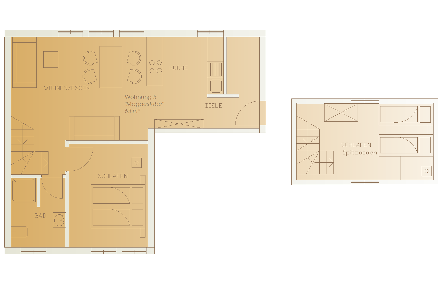
Mägdestube

  • Ferienwohnung über 2 Etagen mit 63 m² Wohnfläche für max. 4 Personen
  • Wohnraum mit offener moderner Küche  
  • ein Schlafzimmer mit Doppelbett (auf Anfrage Baby-Reisebett)
  • offener Schlafboden mit zwei Einzelbetten
  • Badezimmer mit Dusche und WC - Fußbodenheizung
  • WLAN kostenfrei
  • gemeinsame Nutzung kleiner Balkon mit der Knechtestube

  • großer Wohnraum

  • offene Küche

  • großer Esstisch

  • Schlafzimmer mit Doppelbett

  • offener Schlafboden

  • schönes Bad

  • ebenerdige Dusche

  • Garderobe

Ausstattung

    • Wohnraum Couch, SAT-TV (LCD), Radio, CD-Player

    • Küche Kühlschrank mit Gefrierfach, Induktionskochfeld, Backofen, Geschirrspüler, Wasserkocher, Kaffeemaschine, Toaster, Esstisch

    • Schlafzimmer mit Doppelbett

    • offener Schlafboden mit 2 Einzelbetten

    • Bad mit Fußbodenheizung und ebenerdiger Dusche

    • kostenloser Parkplatz

    • Fahrrad- / E-Bike-Garage

    • Das Hammergut ist ein Nichtraucherhaus.

 

= Frei = Belegt

Preise

 

  • bis 4 Personen 99,00 EUR/Nacht
  • Kinder 0-2 Jahre kostenlos
  • Endreinigung 100,00 EUR


Im Preis sind Bettwäsche, Handtücher, Strom und Wasser enthalten.
Alle Preise sind inklusive der gesetzl. MwSt. 

 

Grundriss Mägdestube